Einfamilienhäuser
Navigation überspringen
  • Wohnhaus Kitzbühel
  • Wohnhaus Mühlviertel
  • Wohnhaus Wien
  • Wohnhaus Mühlviertel 2
  • Wohnhaus Salzburg 1
  • Wohnhaus Elixhausen
  • Wohnhaus Salzburg 2
  • Wohnhäuser Salzburg 3
  • Wohnhaus Obermillstatt
  • Wohnhaus Hof

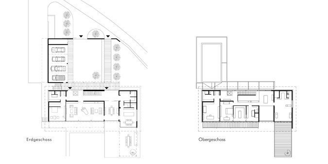
Wohnhaus Mühlviertel 2

BAUHERR:
Familie E.

JAHR:
2007-2009

STANDORT:
Mühlviertel

FOTOGRAF:
KAMÜ

Das in ländlicher Umgebung errichtete Ensemble besteht aus zweigeschoßigem Haupthaus sowie nördlich vorgelagertem Hof und eingeschoßiger Garage. Eine dazwischen von Ost nach West verlaufende offene Erschließungsachse dient im EG als verbindendes Element. Die klare Grundriss-Struktur des Wohnhauses bietet ein großzügiges Raumempfinden. Nebenräume sowie die vertikale Erschließung sind in einer nördlichen Funktions-spange untergebracht. Alle Wohnräume orientieren sich nach Süden, öffnen sich mittels Glasschiebe-elementen zum Garten und verfügen über vor-gelagerte Terrassen oder Balkone, welche einen fließenden Übergang zwischen Innen- und Außen-raum ermöglichen.

zurück zum Menü
  • Rainbergstrasse 3 C
  • 5020 Salzburg
  • architekten@kamue.at
Navigation überspringen
  • Links
  • Impressum
  • Kontakt