Historische Bauten
Navigation überspringen
  • Abfalterhof
  • Schloss Montfort
  • Schloss Arenberg
  • Salzburg Museum in der Neuen Residenz
  • Galerie Mauroner Wien
  • Altstadtuniversität - Palais Liechtenstein

Schloss Arenberg

BAUHERR:
American Austrian Foundation

JAHR:
2002-2010

STANDORT:
Salzburg

FOTOGRAF:
Philadelphia Photo Arts Center

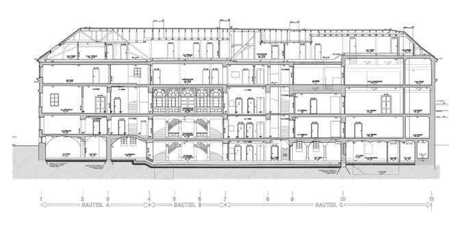
Die Ursprünge des Schlosses Arenberg reichen bis ins 14. Jahrhundert zurück. Nach einer wechsel-vollen Geschichte und dem Kauf des Schlosses durch die Salzburg Stiftung der American Austrian Foundation begannen im Jahr 2002 die Planungen der Architektengemeinschaft Kaschl-Mühlfellner und Scheicher für den Umbau zu einem inter-nationalen Wissenschafts- und Kulturzentrum, welches 2005 eröffnet wurde. Durch einen Brand im April 2009 zerstört, erfolgte der Wiederaufbau und die Fertigstellung der Bauphase 2 im April 2010.

zurück zum Menü
  • Rainbergstrasse 3 C
  • 5020 Salzburg
  • architekten@kamue.at
Navigation überspringen
  • Links
  • Impressum
  • Kontakt