Innen-/Kunsträume
Navigation überspringen
  • Kaigasse 25
  • Festspielshop
  • Münzkabinett
  • Café Mozarts
  • Galerie Mauroner Wien
  • Ordination Schurich
  • Ordination Kaserer
  • Cafe Remisenhof
  • Ordination Fischer
  • Galerie Ropac Paris

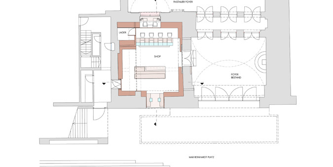
Festspielshop

BAUHERR:
Salzburger Festspiele

JAHR:
2008-2009

STANDORT:
Salzburg

FOTOGRAF:
KAMÜ

Der bestehende Festspielshop zwischen dem Haus für Mozart und dem Großen Festspielhaus in der Salzburger Altstadt konnte durch die Entfernung aller nicht tragenden Innenwände vergrößert werden. Eingefügte Podeste sowie eine bis ins Detail durchdachte Möblierung mit Wandver-täfelungen, Regalen, Vitrinen sowie einem frei-stehendem Möbel schaffen verschiedene Raum-zonen. Der Bereich der Abendkassa in Richtung Faistauer Foyer kann mittels einer großen Schiebetür vom übrigen Shop getrennt werden. Besonderer Blickfang von außen sind die beiden Sitzbänke in der Fensternische, für welche Touchscreens und Kopfhörer zum Musikhören vorgesehen sind.

zurück zum Menü
  • Rainbergstrasse 3 C
  • 5020 Salzburg
  • architekten@kamue.at
Navigation überspringen
  • Links
  • Impressum
  • Kontakt