Öffentliche Bauten
Navigation überspringen
  • Museumsrundgang DomQuartier
  • Kindergarten Ranshofen
  • Salzburg Museum in der Neuen Residenz
  • Gemeinde- und Feuerwehrhaus Obertrum
  • Schloss Seeburg
  • Altstadtuniversität - Palais Liechtenstein
  • Computerwissenschaften Techno-Z
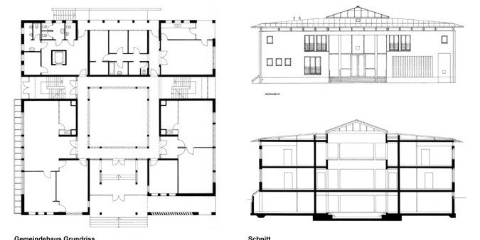
  • Kinder- und Gemeindehaus Seekirchen

Kinder- und Gemeindehaus Seekirchen

BAUHERR:
Gemeinde Seekirchen

JAHR:
1991-1994

STANDORT:
Seekirchen

FOTOGRAF:
Margherita Spiluttini, KAMÜ

Der 1991 gewonnene Wettbewerb zur Gestaltung des gesamten Ortszentrums führte unter anderem zur Realisierung des Kindergartens. Der räumlich architektonische Inhalt des Gebäudes mündet symbolisch in einer "Stadt für Kinder". Drei Kinderhäuser in Holzleimbauweise, zwei gemauerte Sanitärhäuschen und ein Erwachsenenhaus umschließen beiläufig einen gemeinsamen Platz. Neben Elementen wie Brücke, Straße, Speiselokal oder Spielplatz vervollständigt der Blick zur Kirche die Stadt-Illusion. Die Materialwahl und Farbgestaltung der Baukörper dienen als Orientierungshilfe und unterstützen das Konzept.

zurück zum Menü
  • Rainbergstrasse 3 C
  • 5020 Salzburg
  • architekten@kamue.at
Navigation überspringen
  • Links
  • Impressum
  • Kontakt