Studien
Navigation überspringen
  • Machbarkeitsstudie Stille Nacht Bezirk Oberndorf
  • Raumstudie Ticketcenter Festungsbahn

Machbarkeitsstudie Stille Nacht Bezirk

BAUHERR:
Stadt Oberndorf / Land Salzburg

JAHR:
2011

STANDORT:
Oberndorf bei Salzburg

FOTOGRAF:
KAMÜ

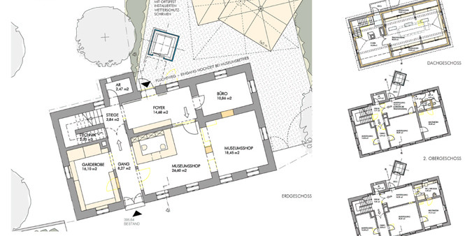
Um Oberndorf - den Ursprungsort des Liedes „Stille Nacht" - als „Leitbetrieb“ und Zentrum des Stille-Nacht-Gedenkens zu etablieren, aber auch das Bewusstsein in der Bevölkerung zu stärken, ist die Neugestaltung der Museen sowie eine raum-strukturelle Veränderung erforderlich. Der Bezug zur historischen Entwicklung und das Erhalten der Authentizität des Ortes bzw. der historischen Bausubstanz unter Beachtung des sozialgeschichtlichen Kontextes sind wesentliche Leitgedanken des Konzeptes, welches u.a. die Revitalisierung des Alten Pfarrhofes, eine räumliche Neuordnung im Bruckmannhaus, die Neugestaltung des Umfeldes der Kapelle sowie die Ergänzung von Neubauten mit öffentlichen Funktionen vorsieht.

zurück zum Menü
  • Rainbergstrasse 3 C
  • 5020 Salzburg
  • architekten@kamue.at
Navigation überspringen
  • Links
  • Impressum
  • Kontakt