Wettbewerbe
Navigation überspringen
  • Hotel Bellevue
  • Bankhaus Spängler Salzburg
  • Vorarlberger Landesmuseum Bregenz
  • Haus der Natur Salzburg
  • Erweiterung Stallgebäude HBLA Ursprung
  • Funworld Salzburg
  • Lagermax Salzburg

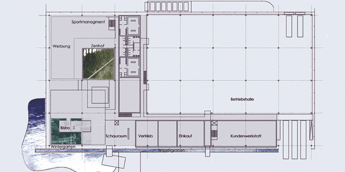
Funworld Salzburg

AUSLOBER:
Funworld Elektronik GmbH

JAHR UND ERGEBNIS:
1998 / 2. Preis

ART DES WETTBEWERBES:
Einstufiger, geladener Wettbewerb

FOTOGRAF:
KAMÜ

Die Dynamik des Unternehmens in Form eines neuen Büro- und Betriebsgebäudes zu dokumen-tieren, war Gegenstand des Wettbewerbes: 'FUNWORLD' in geistiger, funktioneller, räumlicher und ästhetischer Hinsicht. Dabei liegt ein zweige-schoßiger Baukörper als archaische Großform, deren Konstruktionssystem flexible Grundriss-flächen ermöglicht, wie eine blumenbedruckte, transparente Schachtel in der Landschaft. Die spielerische Auseinandersetzung mit der Ober-fläche unter Einsatz der berühmten "Flowers" von Andy Warhol verhilft dem scheinbar substanz-losen, virtuellen Körper zu sinnlicher Qualität und einem unverwechselbaren Erscheinungsbild.

zurück zum Menü
  • Rainbergstrasse 3 C
  • 5020 Salzburg
  • architekten@kamue.at
Navigation überspringen
  • Links
  • Impressum
  • Kontakt