Wettbewerbe
Navigation überspringen
  • Hotel Bellevue
  • Bankhaus Spängler Salzburg
  • Vorarlberger Landesmuseum Bregenz
  • Haus der Natur Salzburg
  • Erweiterung Stallgebäude HBLA Ursprung
  • Funworld Salzburg
  • Lagermax Salzburg

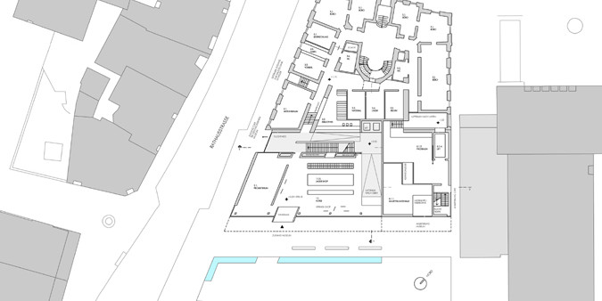
Vorarlberger Landesmuseum

AUSLOBER:
Land Vorarlberg

JAHR UND ERGEBNIS:
2007 / 2. Preis

ART DES WETTBEWERBES:
EU-weiter, einstufiger, geladener Wettbewerb

VISUALISIERUNG:
KAMÜ

Der Entwurf für das Vorarlberger Landesmuseum Neu in Bregenz basiert auf einem spannungsvollen Dialog zwischen denkmalgeschützem Bestands-gebäude und einem zu errichtenden Neubau mit dem Ziel, die Wertigkeit des Museums als lebendiger Ort der Begegnung und Kommunikation nach außen zu tragen. Das schlüssige Zusammen-wirken von Topografie, Raum, Materialität, Farbe, Form und Licht soll dabei eine Harmonie in der rhythmischen Abfolge der Gebäude entstehen lassen. Bestimmt wird das Erscheinungsbild durch große Glasflächen und vorgesetzte, teilweise schwenkbar - teilweise gelocht ausgeführte Aluminiumpaneele, welche Helligkeit und Leichtigkeit vermitteln.

zurück zum Menü
  • Rainbergstrasse 3 C
  • 5020 Salzburg
  • architekten@kamue.at
Navigation überspringen
  • Links
  • Impressum
  • Kontakt